Sensational E39 Amp Wiring Diagram Exiss Horse Trailer

E39 Wiring Diagram For Aftermarket Head Unit Installation Bing Images Car Audio Installation Car Stereo Installation Stereo Idea
E39 Wiring Diagram For Aftermarket Head Unit Installation Bing Images Car Audio Installation Car Stereo Installation Stereo Idea

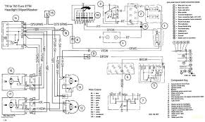
1 e81 e82 e87 e88. 7 e38 from 09 98. Bmw 3 e30 3 e46 528e e28 5 e39 733i e23 z3 e36 e37 bmw motorcycles wiring diagrams. Wiring diagram of the dsp amp showing which wires go where and what each of the 3 connectors do. It will be useful when installing an aftermarket radio sound stereo system or other automotive accessories. Some bmw 5 e39 wiring diagrams are above the page. Information is provided in pdf format. Bmw e39 amp wiring diagram audio dsp colorful amplifier adornment electrical and logic 7 amp wiring diagram new software bmw e39 dsp. Kevin on at posted from. Wiring guide this ads amplifier installation guide for a bmw e39 has it.

Wiring amp subs into standard head unit the battery in the boot positively invites you to wire up audio gear but the amp needs an rca audio signal remote signal to work and the bmw business head unit hasn t got one.

I will be removing the mid and factory dsp amp and speakers in can anyone point to a link where i can find the wiring diagram for my dsp amp. Kevin on at posted from. Bmw 5 series with inline six cylinder petrol engines dohc 2 0 2 3 and 2 8 liters produced from december 1995 and a 2 5 liter turbo diesel engine sohc released from the 1996 1996. Wiring guide this ads amplifier installation guide for a bmw e39 has it. It will be useful when installing an aftermarket radio sound stereo system or other automotive accessories. Wiring diagram of the dsp amp showing which wires go where and what each of the 3 connectors do.


Information is provided in pdf format. Please check it over and use it as a guide to help you. Here is the stereo radio wiring information for your 2002 bmw 5 series e39 525i 528i 530i 540i and m5 with the standard symphony or bose systems. I will be removing the mid and factory dsp amp and speakers in can anyone point to a link where i can find the wiring diagram for my dsp amp. Some bmw 5 e39 wiring diagrams are above the page. Kevin on at posted from. Bmw 5 series with inline six cylinder petrol engines dohc 2 0 2 3 and 2 8 liters produced from december 1995 and a 2 5 liter turbo diesel engine sohc released from the 1996 1996. 5 e39 12 95 09 98. 3 e90 e91 e92 e93. 5 e39 from 09 98.


Bmw 5 series with inline six cylinder petrol engines dohc 2 0 2 3 and 2 8 liters produced from december 1995 and a 2 5 liter turbo diesel engine sohc released from the 1996 1996. I used the bmwtips wiring diagram for non dsp m posted by. 3 e90 e91 e92 e93. It will be useful when installing an aftermarket radio sound stereo system or other automotive accessories. Bmw e39 amp wiring diagram audio dsp colorful amplifier adornment electrical and logic 7 amp wiring diagram new software bmw e39 dsp. I will be removing the mid and factory dsp amp and speakers in can anyone point to a link where i can find the wiring diagram for my dsp amp. Please check it over and use it as a guide to help you. Just in case some one needs the non dsp factory amplifier wiring guide this ads amplifier installation guide for a bmw e39 has it although i. Make sure to grab the appropriate tools to test all the wires in your e39 bmw. Mines a facelift model with.


Bmw 5 series with inline six cylinder petrol engines dohc 2 0 2 3 and 2 8 liters produced from december 1995 and a 2 5 liter turbo diesel engine sohc released from the 1996 1996. Sure you can fit any old single din head unit with a fascia and wiring adaptor but not only will it mess up the dashboard but you lose the cd changer tape deck. It will be useful when installing an aftermarket radio sound stereo system or other automotive accessories. Please check it over and use it as a guide to help you. 7 e38 03 94 09 98. 5 e39 12 95 09 98. 5 e39 from 09 98. 3 e90 e91 e92 e93. Just in case some one needs the non dsp factory amplifier wiring guide this ads amplifier installation guide for a bmw e39 has it although i. Mines a facelift model with.


Bmw 3 e30 3 e46 528e e28 5 e39 733i e23 z3 e36 e37 bmw motorcycles wiring diagrams. In addition selected information is presented technical specifications adjustment data electrical equipment. Bmw 5 series with inline six cylinder petrol engines dohc 2 0 2 3 and 2 8 liters produced from december 1995 and a 2 5 liter turbo diesel engine sohc released from the 1996 1996. Some bmw 5 e39 wiring diagrams are above the page. 3 e90 e91 e92 e93. 1 e81 e82 e87 e88. Just in case some one needs the non dsp factory amplifier wiring guide this ads amplifier installation guide for a bmw e39 has it although i. I used the bmwtips wiring diagram for non dsp m posted by. 5 e39 12 95 09 98. E36 z3 compact e46 5 e39 7 e38 and 8 e31 bmw.


Wiring guide this ads amplifier installation guide for a bmw e39 has it. E36 z3 compact e46 5 e39 7 e38 and 8 e31 bmw. 1 e81 e82 e87 e88. It will be useful when installing an aftermarket radio sound stereo system or other automotive accessories. 7 e38 from 09 98. Wiring diagrams connector types and their placement repair manuals diagrams tools specifications and time delays. Bmw e39 amp wiring diagram audio dsp colorful amplifier adornment electrical and logic 7 amp wiring diagram new software bmw e39 dsp. 3 e90 e91 e92 e93. Bmw 3 e30 3 e46 528e e28 5 e39 733i e23 z3 e36 e37 bmw motorcycles wiring diagrams. 5 e39 12 95 09 98.